NLNKLU34 családi ház nettó: 56,52 m²
Figyelem!
Alaprajzaink kiindulási pontként is szolgálnak!
Bővíthetők, csökkenthetők, áttrendezhetők.
Áttervezhetőek az adott helyszín építési szabályait figyelembe véve.
Kiindulási alapnak számíthatnak egy egyedi elképzeléshez is!
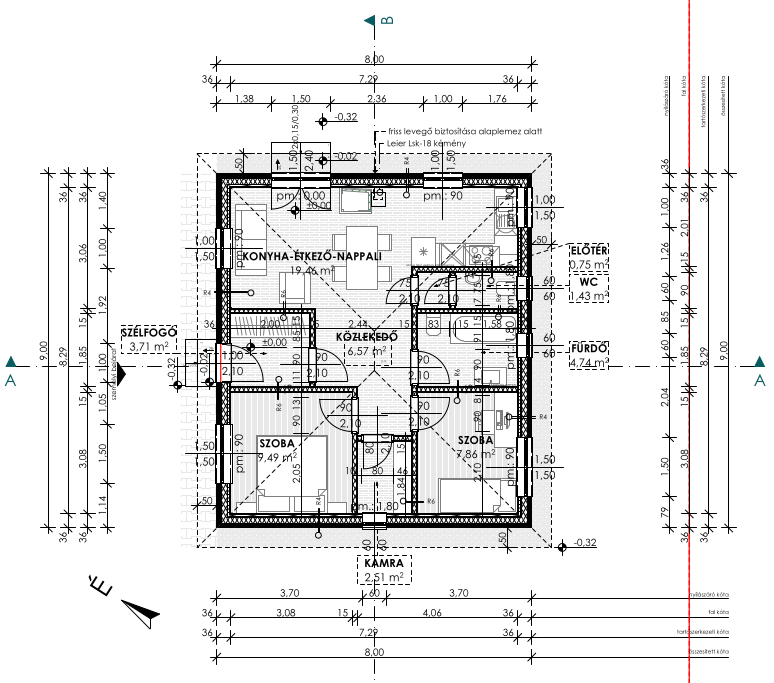
Helyiséglista:
Szélfogó kerámia 3,71 m2
Közlekedő kerámia 6,57 m2
Konyha+étkező+nappali kerámia 19,46 m2
WC kerámia 1,43 m2
Előtér kerámia 0,75 m2
Fürdő kerámia 4,74 m2
Kamra kerámia 2,51 m2
Szoba lam.park. 7,86 m2
Szoba lam.park. 9,49 m2
Összesen: 56,52 m2
Alaprajz: NLNKLU34 alaprajz







